Dr. Oortwijn Botjeslaan 44
9681 GC Midwolda
94 m2 160 m2 - 4 kamers
Vraagprijs € 225.000 Kosten koper
Verkocht
Omschrijving
Nette instapklare woning in rustige straat!
Gelegen in rustige straat met groenstrook voor de deur, verrassend ruime tussenwoning aan de Dr. Oortwijn Botjeslaan in Midwolda. Deze jaren '70 woning is voorzien van 6 zonnepanelen, 3 ruime slaapkamers en onderhoudsarme voor- en achtertuin met een gezellige serre.
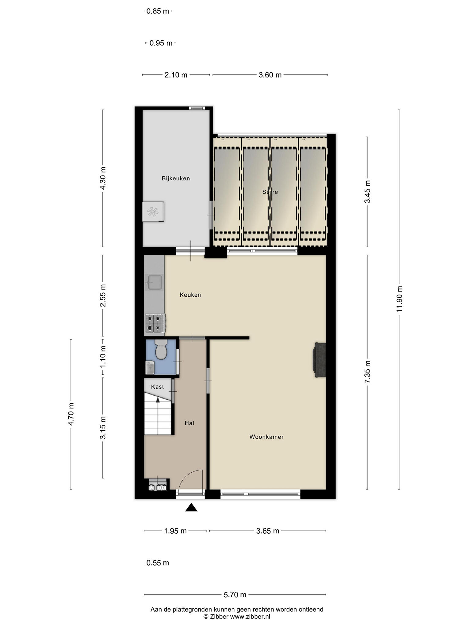
Begane grond: entree/hal, toiletruimte met fonteintje, trapopgang naar de verdieping, lichte doorzonkamer met nette laminaatvloer. De praktische keuken is voorzien van vaatwasser, oven, gasfornuis en afzuigsysteem. Vanuit de keuken loopt u de ruime berging in, ideaal voor hobby, klus of extra opslag, met directe toegang tot het terras met overkapping – perfect voor gezellige buitenmomenten.
Eerste verdieping: overloop, totaal 3 ruime en nette slaapkamers en een badkamer voorzien van inloopdouche, wastafel met meubel en designradiator.
Vliering: middels vlizotrap bereikbaar, bergruimte.
Tuin: aangebouwde volledig afsluitbare serre, een vrijstaande berging en achterom.
Bijzonderheden:
- 6 stuks zonnepanelen;
- volledig geïsoleerd en HR++ beg;
- volledig voorzien van kunststof kozijnen en deuren;
- voorzien van nieuwe cv-ketel (februari 2026)
- op korte afstand van strand Blauwestad en het prachtige Midwolderbos, perfect voor wandelen, fietsen en recreatie;
- energielabel A;
- goede verbinding (A7) richting Groningen, Veendam en Winschoten.
Gelegen in rustige straat met groenstrook voor de deur, verrassend ruime tussenwoning aan de Dr. Oortwijn Botjeslaan in Midwolda. Deze jaren '70 woning is voorzien van 6 zonnepanelen, 3 ruime slaapkamers en onderhoudsarme voor- en achtertuin met een gezellige serre.
Begane grond: entree/hal, toiletruimte met fonteintje, trapopgang naar de verdieping, lichte doorzonkamer met nette laminaatvloer. De praktische keuken is voorzien van vaatwasser, oven, gasfornuis en afzuigsysteem. Vanuit de keuken loopt u de ruime berging in, ideaal voor hobby, klus of extra opslag, met directe toegang tot het terras met overkapping – perfect voor gezellige buitenmomenten.
Eerste verdieping: overloop, totaal 3 ruime en nette slaapkamers en een badkamer voorzien van inloopdouche, wastafel met meubel en designradiator.
Vliering: middels vlizotrap bereikbaar, bergruimte.
Tuin: aangebouwde volledig afsluitbare serre, een vrijstaande berging en achterom.
Bijzonderheden:
- 6 stuks zonnepanelen;
- volledig geïsoleerd en HR++ beg;
- volledig voorzien van kunststof kozijnen en deuren;
- voorzien van nieuwe cv-ketel (februari 2026)
- op korte afstand van strand Blauwestad en het prachtige Midwolderbos, perfect voor wandelen, fietsen en recreatie;
- energielabel A;
- goede verbinding (A7) richting Groningen, Veendam en Winschoten.
Kenmerken
Overdracht
Status
Verkocht
Vraagprijs
Vraagprijs € 225.000 kosten koper
Aanvaarding
In overleg
Bouwvorm
Bouwjaar
1976
Bouwvorm
Bestaande bouw
Indeling
Woonoppervlakte
94m2
Inhoud
341m3
Aantal kamers
4
Woning
Soort
Eengezinswoning
Type
Tussenwoning
Ligging
Aan rustige weg, in woonwijk
Energie
Klasse
A
Datum
03-03-2036
Isolatievormen
Dakisolatie, muurisolatie
Verwarming
Verwarmingssoorten
Cv ketel
Warmwatersoorten
Cv ketel
CV Combiketel
1
CV ketel type
Intergas kombi kompakt hre 28/24 a
CV ketel bouwjaar
2026
CV ketel brandstof
Gas
CV ketel eigendom
Eigendom
Overig
Permanente woning
Ja
Onderhoud binnen
Goed tot uitstekend
Onderhoud buiten
Goed tot uitstekend
Huidig gebruik
Woonruimte
Huidige bestemming
Woonruimte
Onderhoudswaardering binnen
Goed tot uitstekend
Onderhoudswaardering buiten
Goed tot uitstekend
Voorzieningen wonen
Zonnepanelen, natuurlijke ventilatie
Bijzonderheden
Gedeeltelijk gestoffeerd
Dak
Type
Zadeldak
Materialen
Pannen
Tuin
Kwaliteit
Verzorgd
Types
Achtertuin, voortuin
Totale oppervlakte
85m2
Hoofdtuin type
Achtertuin
Hoofdtuin locatie
Noordwest
Hoofdtuin lengte
10,00m
Hoofdtuin breedte
5,00m
Hoofdtuin oppervlakte
50m2
Hoofdtuin achterom
Ja
Oppervlakte gebouwgebonden buitenruimte
12
Parkeren en garages
Garage soorten
Geen garage
Parkeerfaciliteiten
Openbaar parkeren
Schuren en bergingen
Soort
Vrijstaand hout
Oppervlakte externe bergruimte
4m2









































