Veenhofsweg 41
9661 TE Alteveer
141 m2 / 2645 m2 - 5 kamers
Vraagprijs € 599.000 Kosten koper
Onder optie
Omschrijving
Paardenliefhebbers opgelet: Energiezuinig wonen in Alteveer!
Op zoek naar een vrijstaande woning met ruimte voor paarden of kleinvee, op een rustige en groene locatie? Dan is deze goed onderhouden woning aan de Veenhofsweg 41 in Alteveer perfect voor u! Gelegen op een royaal perceel van circa 2.645 m², biedt deze woning rust, privacy en volop mogelijkheden voor hobby en ontspanning.
Ideaal voor dierenliefhebbers
Het perceel beschikt over stallen, ideaal voor het houden van paarden of kleinvee. Daarnaast is er een rijbak met verlichting, zodat u direct van uw hobby kunt genieten.
Indeling
Begane grond: entree/hal, trapopgang naar de verdieping, toiletruimte met wandcloset en fonteintje, vaste kast en meterkast, lichte woonkamer met open keuken, de keuken is voorzien van diverse inbouwapparatuur, praktische bijkeuken met witgoedaansluiting en wandkast, toegang tot de geïsoleerde garage.
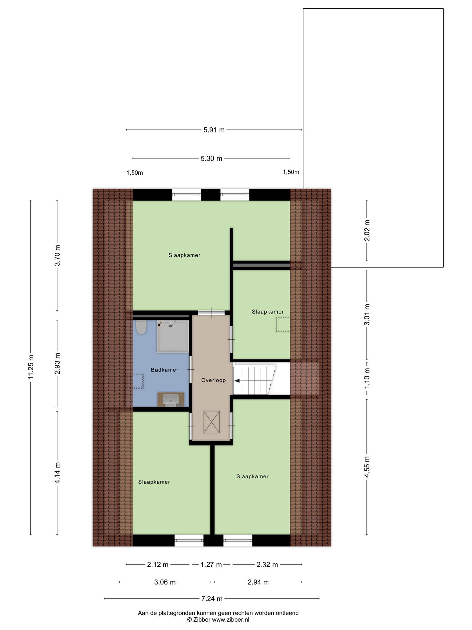
Eerste verdieping: overloop, totaal 4 slaapkamers waarvan 1 met inloopkast, berging, leuke badkamer voorzien van inloopdouche, wastafel en 2e toilet.
Tweede verdieping: ruime zolder bereikbaar via vlizotrap, ideaal voor extra opslag.
Bijzonderheden
- ruim perceel van 2.645 m²;
- geïsoleerde garage met extra wasmachineaansluiting;
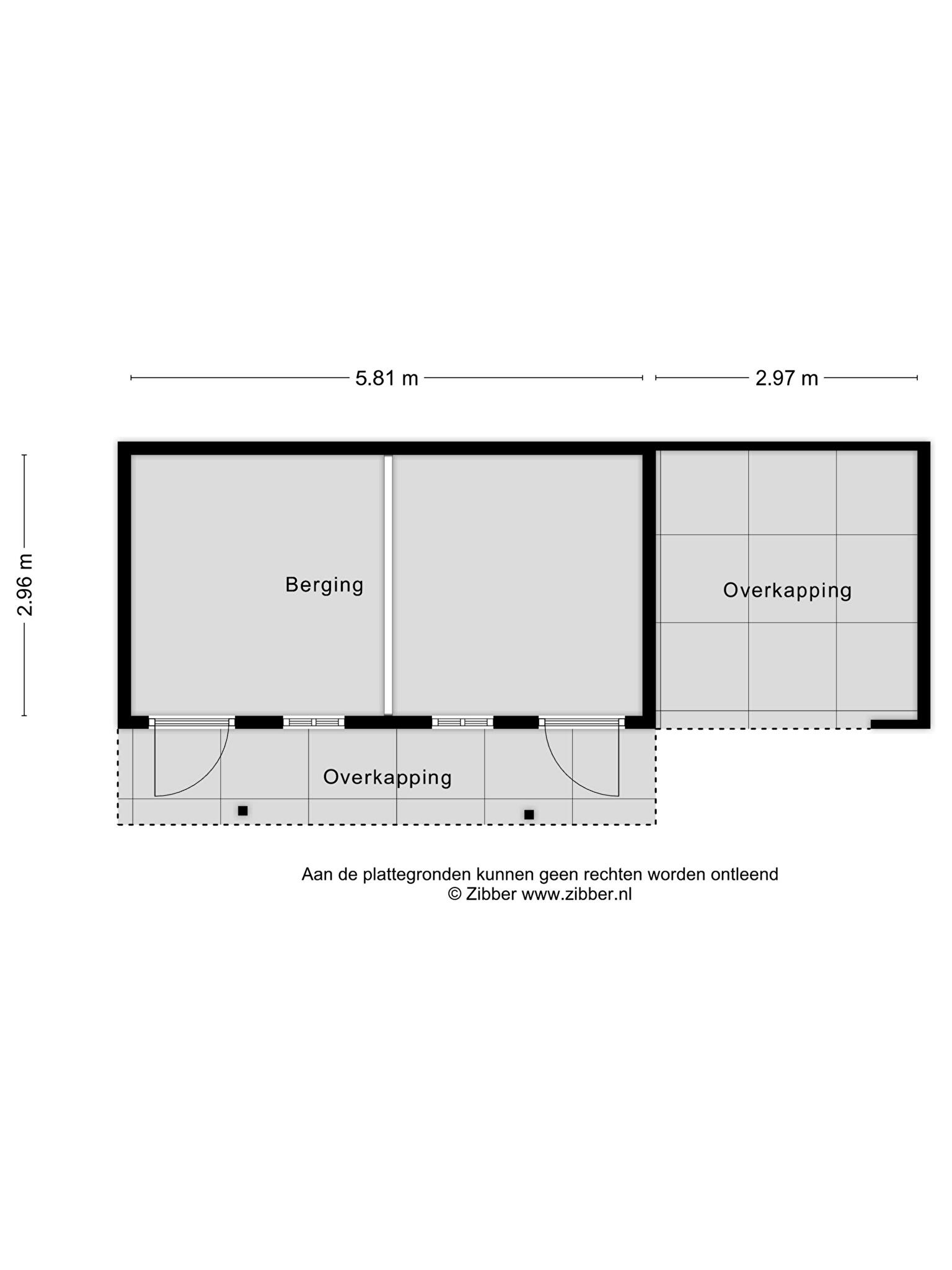
- moderne overkapping direct aan het huis;
- 4 slaapkamers;
- warmtepomp met een boiler van 270 liter;
- voorzien van HR++ glas;
- 2 airconditioners;
- waterontharder;
- 10 zonnepanelen;
- rijbak met verlichting;
- op fietsafstand van Onstwedde en Stadskanaal.
Deze woning biedt de perfecte combinatie van rust, ruimte en landelijke ligging, terwijl dagelijkse voorzieningen, scholen en winkels binnen handbereik liggen. Geniet van de natuurlijke omgeving en de royale tuin, in een duurzaam en comfortabel huis.
Op zoek naar een vrijstaande woning met ruimte voor paarden of kleinvee, op een rustige en groene locatie? Dan is deze goed onderhouden woning aan de Veenhofsweg 41 in Alteveer perfect voor u! Gelegen op een royaal perceel van circa 2.645 m², biedt deze woning rust, privacy en volop mogelijkheden voor hobby en ontspanning.
Ideaal voor dierenliefhebbers
Het perceel beschikt over stallen, ideaal voor het houden van paarden of kleinvee. Daarnaast is er een rijbak met verlichting, zodat u direct van uw hobby kunt genieten.
Indeling
Begane grond: entree/hal, trapopgang naar de verdieping, toiletruimte met wandcloset en fonteintje, vaste kast en meterkast, lichte woonkamer met open keuken, de keuken is voorzien van diverse inbouwapparatuur, praktische bijkeuken met witgoedaansluiting en wandkast, toegang tot de geïsoleerde garage.
Eerste verdieping: overloop, totaal 4 slaapkamers waarvan 1 met inloopkast, berging, leuke badkamer voorzien van inloopdouche, wastafel en 2e toilet.
Tweede verdieping: ruime zolder bereikbaar via vlizotrap, ideaal voor extra opslag.
Bijzonderheden
- ruim perceel van 2.645 m²;
- geïsoleerde garage met extra wasmachineaansluiting;
- moderne overkapping direct aan het huis;
- 4 slaapkamers;
- warmtepomp met een boiler van 270 liter;
- voorzien van HR++ glas;
- 2 airconditioners;
- waterontharder;
- 10 zonnepanelen;
- rijbak met verlichting;
- op fietsafstand van Onstwedde en Stadskanaal.
Deze woning biedt de perfecte combinatie van rust, ruimte en landelijke ligging, terwijl dagelijkse voorzieningen, scholen en winkels binnen handbereik liggen. Geniet van de natuurlijke omgeving en de royale tuin, in een duurzaam en comfortabel huis.
Kenmerken
Overdracht
Status
Onder optie
Vraagprijs
Vraagprijs € 599.000 kosten koper
Aanvaarding
In overleg
Bouwvorm
Bouwjaar
2010
Bouwvorm
Bestaande bouw
Indeling
Woonoppervlakte
141m2
Inhoud
703m3
Aantal kamers
5
Woning
Soort
Eengezinswoning
Type
Vrijstaande woning
Ligging
Aan rustige weg, vrij uitzicht, landelijk gelegen
Energie
Klasse
A
Datum
07-10-2035
Isolatievormen
Dakisolatie, muurisolatie, vloerisolatie, volledig geisoleerd, hr glas
Verwarming
Verwarmingssoorten
Cv ketel, vloerverwarming gedeeltelijk, elektrische verwarming, warmtepomp
CV Combiketel
1
CV ketel type
Intergas
CV ketel brandstof
Gas
CV ketel eigendom
Eigendom
Overig
Permanente woning
Ja
Onderhoud binnen
Goed tot uitstekend
Onderhoud buiten
Goed tot uitstekend
Huidig gebruik
Woonruimte
Huidige bestemming
Woonruimte
Onderhoudswaardering binnen
Goed tot uitstekend
Onderhoudswaardering buiten
Goed tot uitstekend
Voorzieningen wonen
Mechanische ventilatie, rolluiken, tv kabel, buitenzonwering, airconditioning, schuifpui, dakraam, zonnepanelen, natuurlijke ventilatie
Bijzonderheden
Gedeeltelijk gestoffeerd
Dak
Type
Zadeldak
Materialen
Pannen
Tuin
Kwaliteit
Verzorgd
Types
Tuin rondom
Hoofdtuin type
Tuin rondom
Hoofdtuin achterom
Ja
Oppervlakte gebouwgebonden buitenruimte
23
Parkeren en garages
Aantal garages
1
Garage soorten
Aangebouwd steen
Garage lengte
8,11m
Garage breedte
4,09m
Garage oppervlakte
33m2
Garage capaciteit
1
Garage isolatievorm
Dakisolatie, muurisolatie, vloerisolatie, volledig geisoleerd
Garage voorzieningen
Verwarming, elektra, water, elektrische deur
Parkeerfaciliteiten
Op eigen terrein
Schuren en bergingen
Aantal
1
Soort
Vrijstaand hout
Oppervlakte externe bergruimte
17m2






















































