Emmastraat 10
9671 AP Winschoten
545 m2 / 736 m2 - 10 kamers
Vraagprijs
€ 650.000
Kosten koper
€ 75.000,00
Per jaar
Beschikbaar
Omschrijving
Kenmerken
Overdracht
Status
Beschikbaar
Vraagprijs
Vraagprijs € 650.000 kosten koper
Huurprijs
Huurprijs € 75.000,00 per jaar
Aanvaarding
In overleg
Bouwvorm
Bouwjaar
1932
Bouwvorm
Bestaande bouw
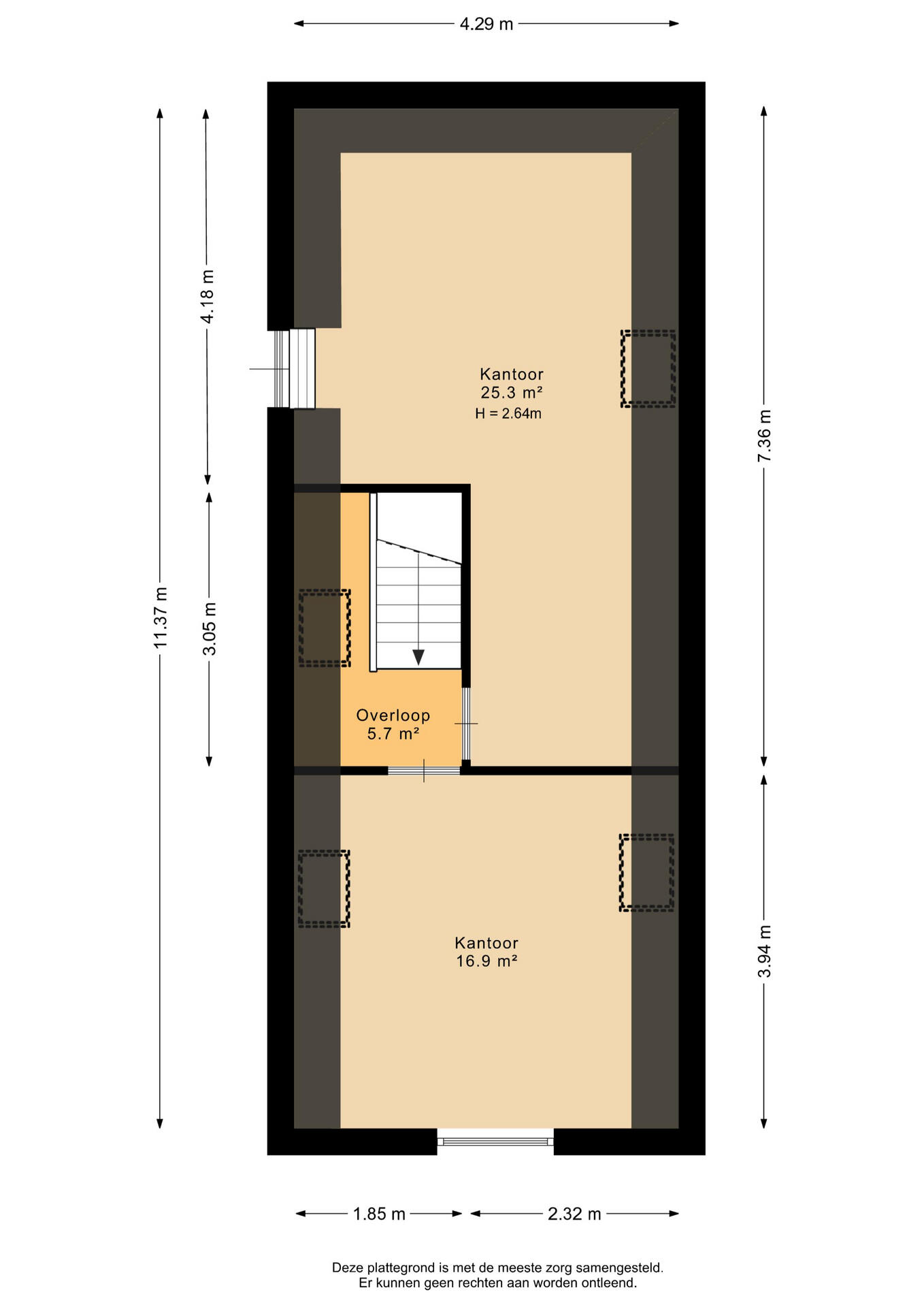
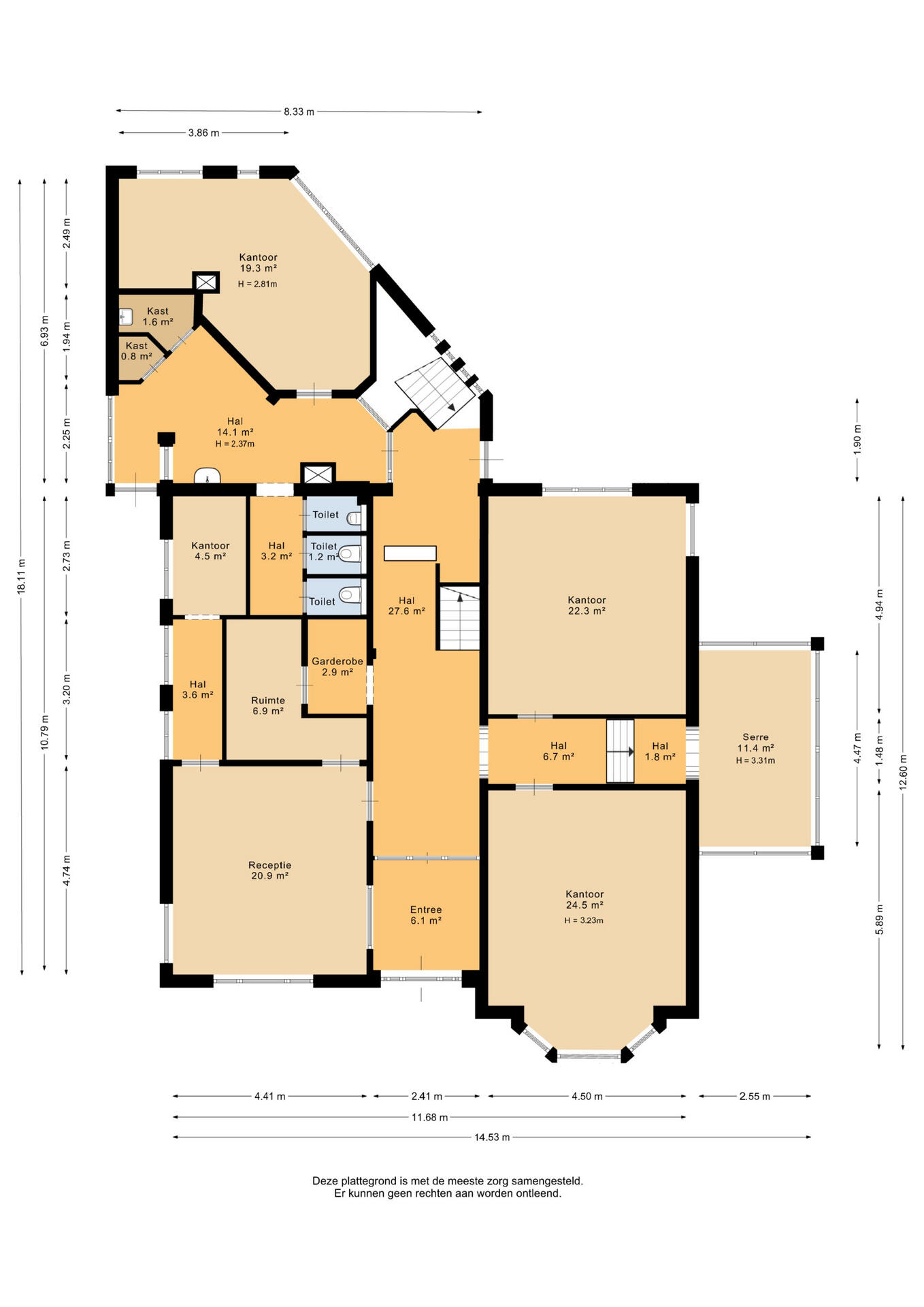
Indeling
Woonoppervlakte
545m2
Inhoud
1921m3
Aantal kamers
10
Woning
Soort
Herenhuis
Type
Vrijstaande woning
Ligging
Aan rustige weg, in centrum
Energie
Klasse
G
Datum
13-05-2032
Isolatievormen
Voorzetramen, grotendeels dubbelglas
Verwarming
Verwarmingssoorten
Cv ketel
Warmwatersoorten
Cv ketel
CV Combiketel
1
CV ketel type
Nefit
CV ketel bouwjaar
2016
CV ketel brandstof
Gas
CV ketel eigendom
Eigendom
Overig
Permanente woning
Ja
Onderhoud binnen
Goed
Onderhoud buiten
Goed
Huidig gebruik
Kantoor
Huidige bestemming
Woonruimte - kantoor
Onderhoudswaardering binnen
Goed
Onderhoudswaardering buiten
Goed
Voorzieningen wonen
Buitenzonwering, airconditioning, dakraam, natuurlijke ventilatie
Bijzonderheden
Gedeeltelijk gestoffeerd
Dak
Type
Samengesteld dak
Materialen
Pannen, bitumineuze dakbedekking
Tuin
Kwaliteit
Normaal
Types
Achtertuin, voortuin, zijtuin
Hoofdtuin type
Achtertuin
Hoofdtuin locatie
Oost
Hoofdtuin lengte
21,50m
Hoofdtuin breedte
18,00m
Hoofdtuin oppervlakte
387m2
Hoofdtuin achterom
Ja
Oppervlakte gebouwgebonden buitenruimte
15
Parkeren en garages
Aantal garages
1
Garage soorten
Aangebouwd steen, parkeerplaats
Garage oppervlakte
18m2
Garage capaciteit
1
Garage voorzieningen
Elektra
Parkeerfaciliteiten
Openbaar parkeren, op eigen terrein
Parkeercapaciteit
3


































































