Oogstlaan 6
9665 AG Oude Pekela
104 m2 2477 m2 - 4 kamers
Vraagprijs € 349.000 Kosten koper
Beschikbaar
Omschrijving
Een woning met volop ruimte, rust én mogelijkheden voor paardenliefhebbers!
Gelegen op landelijke locatie in Oude Pekela staat deze charmante twee-onder-een-kapwoning op een royaal perceel van maar liefst 2.475 m². Hier geniet u dagelijks van vrij en weids uitzicht over de omliggende landerijen, terwijl alle dagelijkse voorzieningen zich op korte afstand bevinden. Een perfecte combinatie tussen landelijk wonen en praktisch gemak.
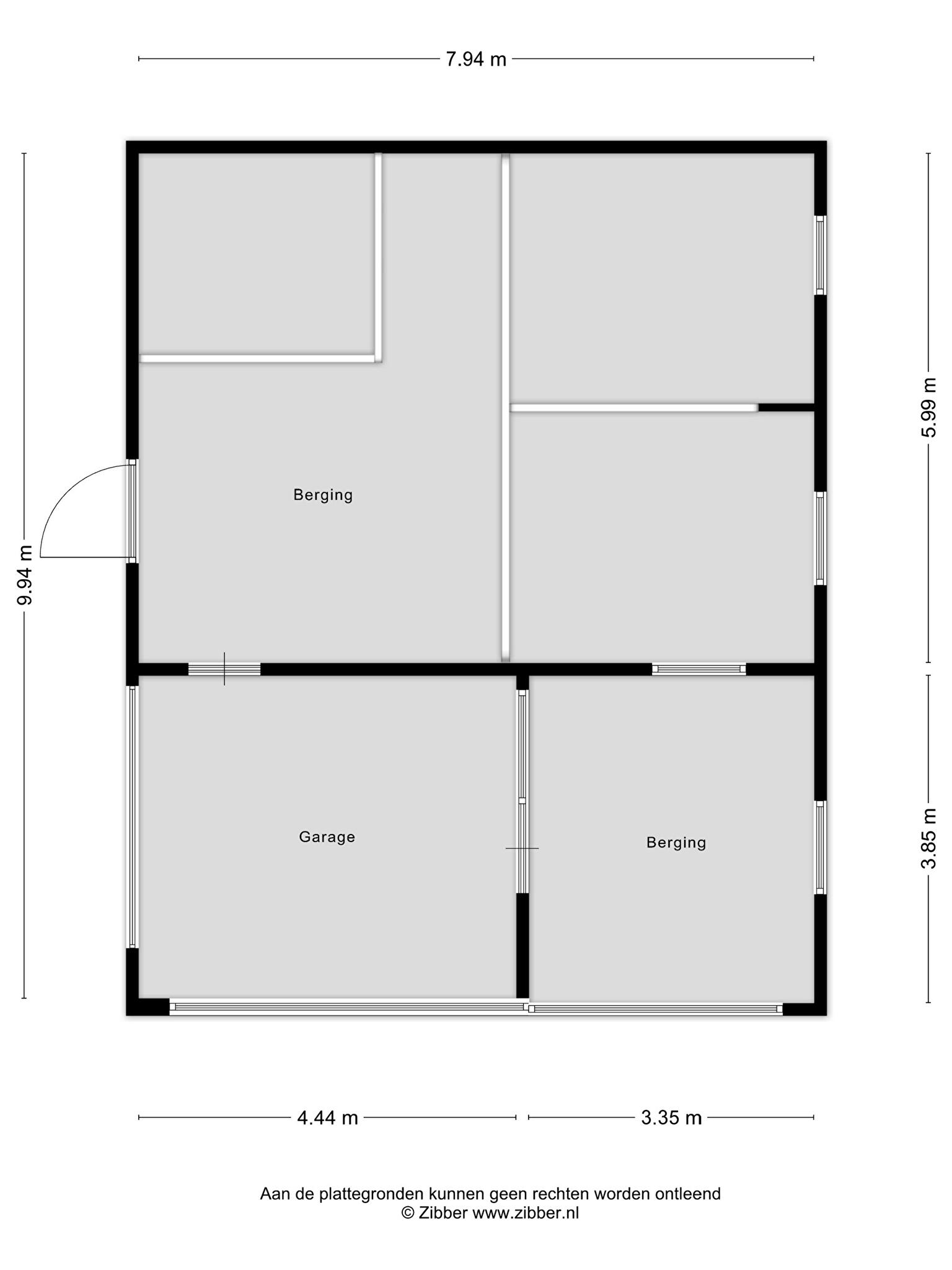
Een bijzonder pluspunt voor paardenliefhebbers zijn de aanwezige paardenstallen én een eigen rijbaan op het perceel. Hierdoor is het mogelijk om paarden aan huis te houden en optimaal te genieten van het buitenleven.
Begane grond: zijentree/hal, trapopgang naar de verdieping, royale lichte woonkamer voorzien van laminaatvloer, open, recht opgestelde keuken voorzien van gasfornuis en afzuigsysteem en toegang tot de berging, voorzien van bergruimte, witgoedaansluiting en deur naar het terras, badkamer voorzien van ligbad, douche, wastafel met meubel en een separaat toiletruimte met wandcloset en fonteintje.
Eerste verdieping: overloop, 2e toilet en totaal 3 slaapkamers ieder met veel natuurlijk lichtinval d.m.v. de dakkapel.
Bijzonderheden:
- vrij uitzicht over landerijen;
- dakkapel voor extra ruimte en lichtinval;
- voorzien van HR++ beglazing;
- recent vernieuwde groepenkast;
- de rijbaan (paardenbak) van ca. 20x40 meter, voorzien van polyvlokken en verlichting;
- de paddocks met drainageroosters en zand;
- 5 paardenstallen en 1 ponystal;
- het dak van de stal is recent vernieuwd en geïsoleerd (met geïsoleerde sandwich dakpanelen).
Het perceel biedt volop mogelijkheden om uw eigen buitenleven vorm te geven.
Gelegen op landelijke locatie in Oude Pekela staat deze charmante twee-onder-een-kapwoning op een royaal perceel van maar liefst 2.475 m². Hier geniet u dagelijks van vrij en weids uitzicht over de omliggende landerijen, terwijl alle dagelijkse voorzieningen zich op korte afstand bevinden. Een perfecte combinatie tussen landelijk wonen en praktisch gemak.
Een bijzonder pluspunt voor paardenliefhebbers zijn de aanwezige paardenstallen én een eigen rijbaan op het perceel. Hierdoor is het mogelijk om paarden aan huis te houden en optimaal te genieten van het buitenleven.
Begane grond: zijentree/hal, trapopgang naar de verdieping, royale lichte woonkamer voorzien van laminaatvloer, open, recht opgestelde keuken voorzien van gasfornuis en afzuigsysteem en toegang tot de berging, voorzien van bergruimte, witgoedaansluiting en deur naar het terras, badkamer voorzien van ligbad, douche, wastafel met meubel en een separaat toiletruimte met wandcloset en fonteintje.
Eerste verdieping: overloop, 2e toilet en totaal 3 slaapkamers ieder met veel natuurlijk lichtinval d.m.v. de dakkapel.
Bijzonderheden:
- vrij uitzicht over landerijen;
- dakkapel voor extra ruimte en lichtinval;
- voorzien van HR++ beglazing;
- recent vernieuwde groepenkast;
- de rijbaan (paardenbak) van ca. 20x40 meter, voorzien van polyvlokken en verlichting;
- de paddocks met drainageroosters en zand;
- 5 paardenstallen en 1 ponystal;
- het dak van de stal is recent vernieuwd en geïsoleerd (met geïsoleerde sandwich dakpanelen).
Het perceel biedt volop mogelijkheden om uw eigen buitenleven vorm te geven.
Kenmerken
Overdracht
Status
Beschikbaar
Vraagprijs
Vraagprijs € 349.000 kosten koper
Aanvaarding
In overleg
Bouwvorm
Bouwjaar
1930
Bouwvorm
Bestaande bouw
Indeling
Woonoppervlakte
104m2
Inhoud
370m3
Aantal kamers
4
Woning
Soort
Eengezinswoning
Type
Twee onder een kapwoning
Ligging
Aan rustige weg, vrij uitzicht, open ligging, buiten bebouwde kom, landelijk gelegen
Energie
Klasse
C
Datum
08-04-2036
Isolatievormen
Dakisolatie, muurisolatie, dubbel glas
Verwarming
Verwarmingssoorten
Cv ketel
Warmwatersoorten
Cv ketel
CV Combiketel
1
CV ketel type
Intergas kombi kompakt hre 36/30
CV ketel bouwjaar
2025
CV ketel brandstof
Gas
CV ketel eigendom
Huur
Overig
Permanente woning
Ja
Onderhoud binnen
Goed
Onderhoud buiten
Goed
Huidig gebruik
Woonruimte
Huidige bestemming
Woonruimte
Onderhoudswaardering binnen
Goed
Onderhoudswaardering buiten
Goed
Voorzieningen wonen
Mechanische ventilatie, rookkanaal, natuurlijke ventilatie
Bijzonderheden
Gedeeltelijk gestoffeerd
Dak
Type
Zadeldak
Materialen
Pannen
Tuin
Kwaliteit
Fraai aangelegd
Types
Achtertuin, voortuin
Hoofdtuin type
Achtertuin
Hoofdtuin locatie
Noordoost
Hoofdtuin lengte
82,00m
Hoofdtuin breedte
24,00m
Hoofdtuin oppervlakte
1968m2
Hoofdtuin achterom
Ja
Parkeren en garages
Garage soorten
Garage mogelijk
Parkeerfaciliteiten
Op eigen terrein
Parkeercapaciteit
2
Schuren en bergingen
Oppervlakte externe bergruimte
80m2










































































