Emmastraat 10
9671 AP Winschoten
Vraagprijs
€ 650.000
Kosten koper
€ 75.000,00
Per jaar
Beschikbaar
Omschrijving
Karaktervol herenhuis in hartje Winschoten
Op zoek naar een uniek pand met karakter en ruimte voor werk én wonen? Dan is dit statige herenhuis uit het begin van de 20e eeuw iets voor jou! Gelegen op een steenworp afstand van het centrum en het NS-station van Winschoten, combineert het de charme van weleer met praktische mogelijkheden voor vandaag. Ooit notariskantoor, nu klaar voor een nieuwe eigenaar die er wonen, werken of een combinatie van beiden van wil maken. Met hoge ramen, fraaie geveldetails, een ruime indeling én meerdere ruimtes voorzien van airconditioning heeft dit pand stijl, comfort en uitstraling in overvloed.
Veelzijdige mogelijkheden
Dit statige gebouw is goed onderhouden en biedt tal van gebruiksmogelijkheden: van kantoor aan huis of praktijkruimte tot een exclusieve woon-werkcombinatie. De indeling en ruime vertrekken bieden flexibiliteit en comfort, waardoor het pand zowel zakelijk als privé optimaal benut kan worden (bestemming/functie in overleg met de gemeente).
Indeling:
Begane grond:
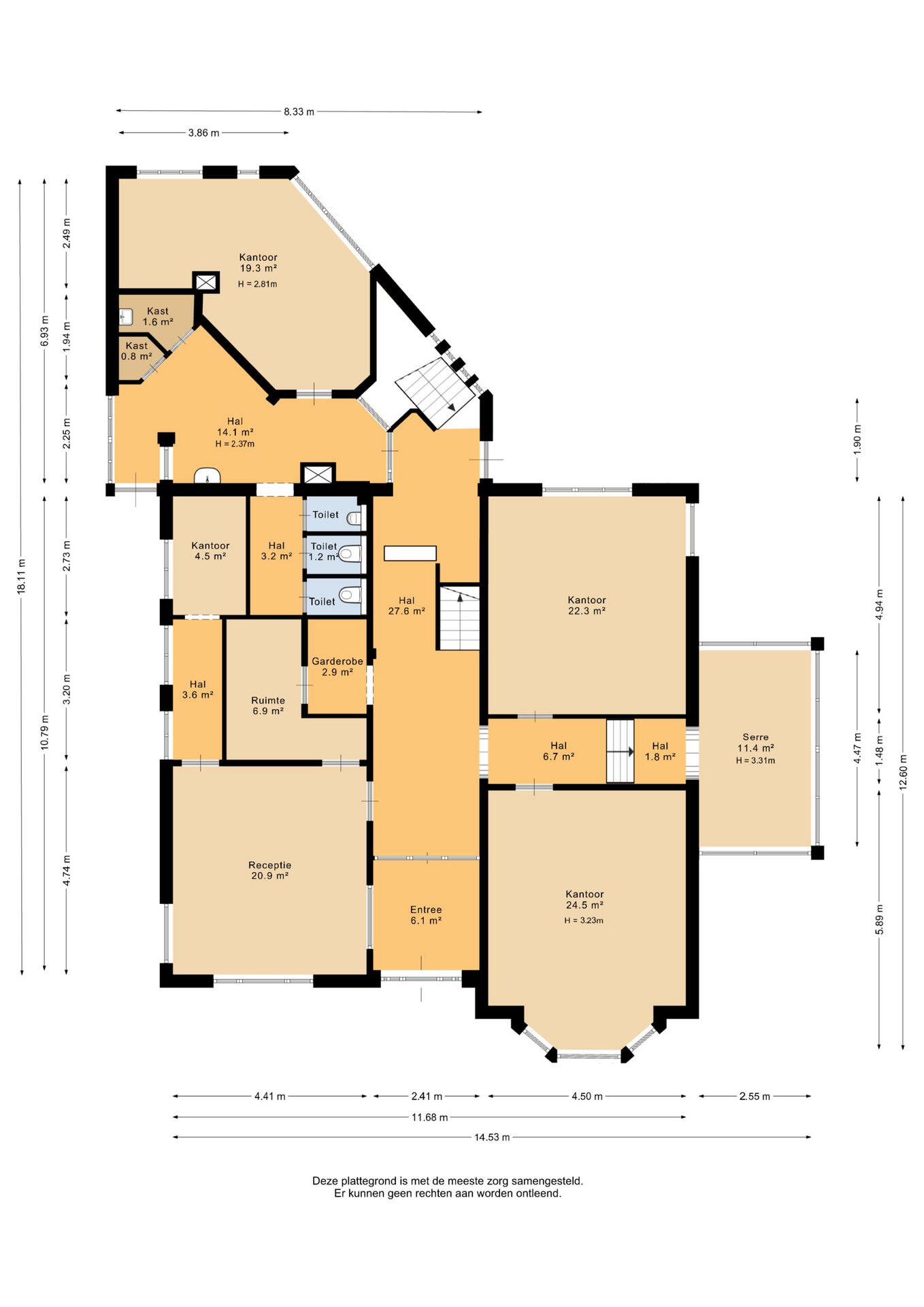
Een indrukwekkende entree leidt naar een ruime ontvangsthal en meerdere representatieve ruimtes. Links bevindt zich een royale ruimte, momenteel in gebruik als receptie, met directe toegang tot multifunctionele vertrekken, een hal, bergruimte en kantoorruimte. Verder zijn er twee grote kantoor-/vergaderruimtes met hoge plafonds, parketvloeren en airconditioning. Een serre aan de achterzijde, nu wachtruimte, biedt veel licht en openslaande deuren naar de tuin. Aan de achterzijde is een tweede entree met hal en toegang tot een royale kantoorruimte, met toegang tot het souterrain.
Souterrain:
Het souterrain is bereikbaar via de centrale hal en beschikt over een ruime tuingerichte kantine/keuken met inbouwapparatuur en bar, diverse bergingen en een cv-ruimte.
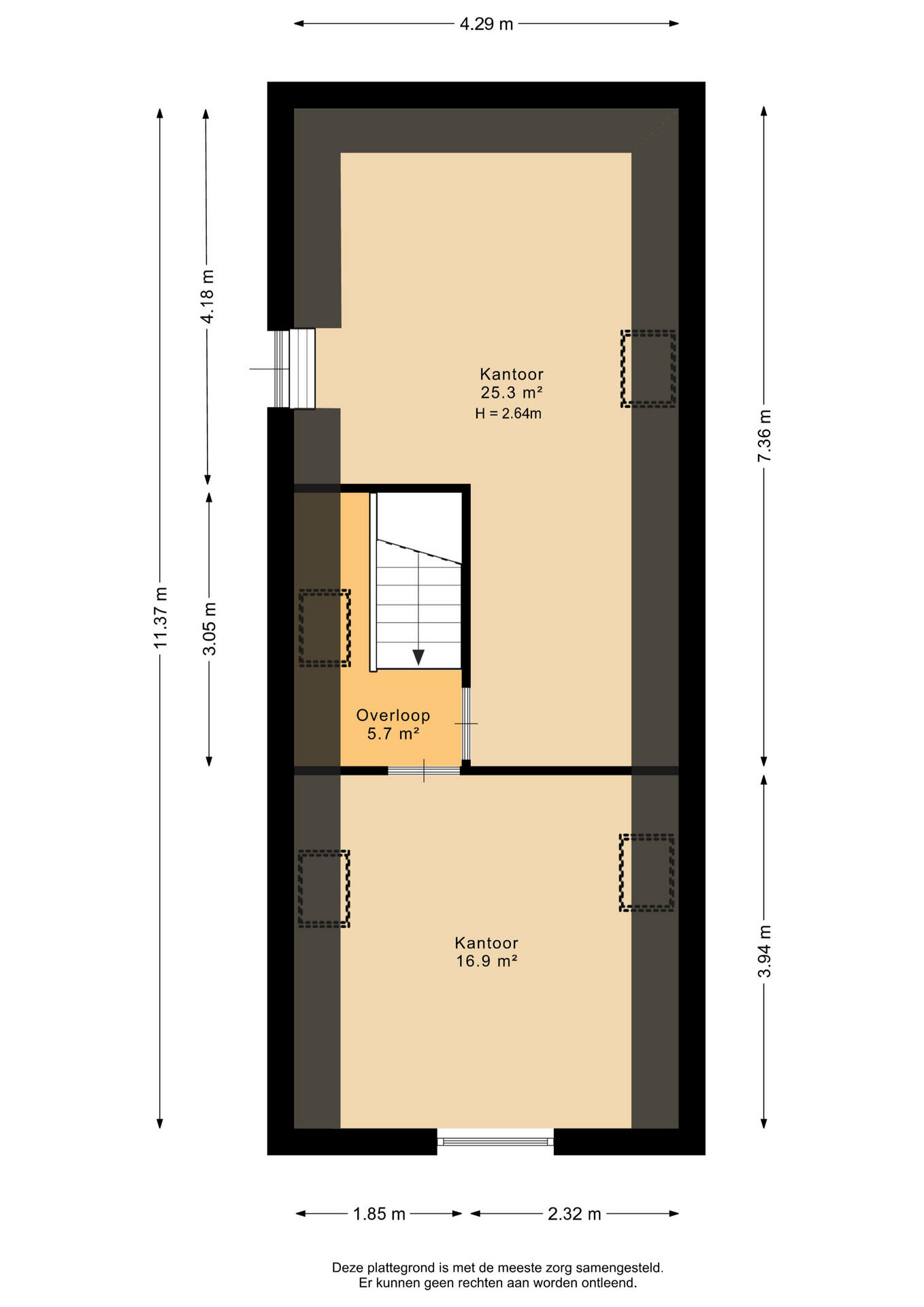
1e verdieping:
Via de trap bereikt u een sfeervolle overloop met glas-in-loodramen en meerdere kantoorruimtes, bergruimte en een technische ruimte. Ook bevindt zich hier de tweede toiletruimte.
2e verdieping:
Twee kantoorruimtes met dakramen bieden extra licht en mogelijkheden voor werk of ontspanning.
Locatie:
Het pand ligt in een rustige, groene straat, omringd door statige herenhuizen en villa’s uit de late 19e en vroege 20e eeuw. Tegelijkertijd liggen het centrum, winkels, restaurants en het trein en busstation op loopafstand. De bereikbaarheid is uitstekend dankzij de nabijheid van uitvalswegen naar omliggende steden.
Bijzonderheden:
- gelegen aan een brede, karakteristieke straat met monumentale panden;
- grotendeels gemoderniseerd circa 2 jaar geleden;
- privétuin met veel groen op ca. 736 m² eigen grond;
- aangebouwde stenen garage;
- parkeergelegenheid op eigen terrein;
- veel mogelijkheden voor wonen, werken of een combinatie daarvan.
Een uniek pand vol karakter, historie en potentie – perfect voor wie zoekt naar een statige plek met allure in het hart van Winschoten.
Op zoek naar een uniek pand met karakter en ruimte voor werk én wonen? Dan is dit statige herenhuis uit het begin van de 20e eeuw iets voor jou! Gelegen op een steenworp afstand van het centrum en het NS-station van Winschoten, combineert het de charme van weleer met praktische mogelijkheden voor vandaag. Ooit notariskantoor, nu klaar voor een nieuwe eigenaar die er wonen, werken of een combinatie van beiden van wil maken. Met hoge ramen, fraaie geveldetails, een ruime indeling én meerdere ruimtes voorzien van airconditioning heeft dit pand stijl, comfort en uitstraling in overvloed.
Veelzijdige mogelijkheden
Dit statige gebouw is goed onderhouden en biedt tal van gebruiksmogelijkheden: van kantoor aan huis of praktijkruimte tot een exclusieve woon-werkcombinatie. De indeling en ruime vertrekken bieden flexibiliteit en comfort, waardoor het pand zowel zakelijk als privé optimaal benut kan worden (bestemming/functie in overleg met de gemeente).
Indeling:
Begane grond:
Een indrukwekkende entree leidt naar een ruime ontvangsthal en meerdere representatieve ruimtes. Links bevindt zich een royale ruimte, momenteel in gebruik als receptie, met directe toegang tot multifunctionele vertrekken, een hal, bergruimte en kantoorruimte. Verder zijn er twee grote kantoor-/vergaderruimtes met hoge plafonds, parketvloeren en airconditioning. Een serre aan de achterzijde, nu wachtruimte, biedt veel licht en openslaande deuren naar de tuin. Aan de achterzijde is een tweede entree met hal en toegang tot een royale kantoorruimte, met toegang tot het souterrain.
Souterrain:
Het souterrain is bereikbaar via de centrale hal en beschikt over een ruime tuingerichte kantine/keuken met inbouwapparatuur en bar, diverse bergingen en een cv-ruimte.
1e verdieping:
Via de trap bereikt u een sfeervolle overloop met glas-in-loodramen en meerdere kantoorruimtes, bergruimte en een technische ruimte. Ook bevindt zich hier de tweede toiletruimte.
2e verdieping:
Twee kantoorruimtes met dakramen bieden extra licht en mogelijkheden voor werk of ontspanning.
Locatie:
Het pand ligt in een rustige, groene straat, omringd door statige herenhuizen en villa’s uit de late 19e en vroege 20e eeuw. Tegelijkertijd liggen het centrum, winkels, restaurants en het trein en busstation op loopafstand. De bereikbaarheid is uitstekend dankzij de nabijheid van uitvalswegen naar omliggende steden.
Bijzonderheden:
- gelegen aan een brede, karakteristieke straat met monumentale panden;
- grotendeels gemoderniseerd circa 2 jaar geleden;
- privétuin met veel groen op ca. 736 m² eigen grond;
- aangebouwde stenen garage;
- parkeergelegenheid op eigen terrein;
- veel mogelijkheden voor wonen, werken of een combinatie daarvan.
Een uniek pand vol karakter, historie en potentie – perfect voor wie zoekt naar een statige plek met allure in het hart van Winschoten.
Kenmerken
Overdracht
Status
Beschikbaar
Vraagprijs
Vraagprijs € 650.000 kosten koper
Huurprijs
Huurprijs € 75.000,00 per jaar
Huurprijs type
Excl btw
Bouwvorm
Bouwjaar 1
1932
Bouwvorm
Bestaande bouw
Gebouw
Ligging
Winkelgebied stadscentrum
Liggingskenmerken
Stationslocatie
Energie
Klasse
G
Einddatum
2032-05-13
Overig
Onderhoud binnen
Goed
Onderhoud buiten
Goed
Onderhoudswaardering binnen
Goed
Onderhoudswaardering buiten
Goed
Parkeren en garages
Parkeerfaciliteiten
Openbaar parkeren, elektrische laadpaal in de straat
Niet overdekte parkeerplaatsen aantal
3


































































